移住される方へのおすすめ物件

まず下関で暮らすメリットを確認!

特徴 説明
住みやすい気候 周りを海に囲まれ、海洋性気候で夏は涼しく冬は温暖で1年を通じて快適。
天災の少ない街 地震が少なく、大きな断層や河川もなく津波や台風も地理的に安全な街。
物価が安い 家賃は全国で5番目以内に低く、その中で下関市は県内で一番低い街。
医療体制が充実 人口割合の医療機関が多く隣の北九州市にも名医が多く安心して暮らせる。
風光明媚な海峡都市 歴史の舞台になった関門海峡があり素晴らしいロケーションが広がりる街。
豊富な海産物 ふく、くじら、あんこうが日本一の水揚げ、海の幸が唐戸市場で安く入手。
交通の利便性が高い 新幹線や空港が3か所が利用でき、大阪や東京行きフェリーも利用できる。
友好的な市民気質 港町で培われた、友好的でおっとりとした気質です。
歴史が佇む街 武家社会や明治維新のきっかけになった海峡都市で歴史に育まれた街。
ゴルフ好きには 市内から1時間内で行けるゴルフ場が10か所しかも安くプレー出来てきる。

移住で下関に暮らす方にお勧めの住居を提案します アースコートディアキャナル下関

海峡沿いに張り出したボードウォーク。木製の小径を歩くたびに、深呼吸したくなる風景が広がります。朝に夕に色を変え、光をたたえる関門海峡。この風景は飽きるという言葉を失わせます。また、歴史上さまざまな物語の舞台となり、平家物語の哀歌を秘めた赤間神宮や幕末の武勇を今に伝えるみもすそ川公園の砲台。北前船の中継港として栄えた跡を残すレトロな建物は悠久の営みの存在を私たちに語ってくれます。ふくをはじめウニや関門の地だこ、イカなどで有名な唐戸市場があり、その周りには、ジョギングや散歩コースに適したボードウォークがあります。また唐戸市場の向かえには下関を代表するふくの像を設置した亀山八幡宮があり、その近くには源平合戦で没した安徳天皇陵の赤間神宮がありその隣には日清講和条約が結ばれ、ふくの料理公許第一号になった春帆楼があります。歴史が佇む界隈で海の幸に恵まれ、時代の大きな転換の舞台となった関門海峡の変化に富んだ景色に育まれ健康的で魅力的なライフワークが営めそうです。四季折々、海峡リゾートに暮らす贅をあなたに提案します。

関門海峡のロケーションを堪能し、海の幸を贅沢なまでに味わえる唐戸市場の近くに立地するアースコートディアキャナル下関

唐戸市場周辺

アースコートディアキャナル下関 MAP

周辺地図

アースコートディアキャナル下関の外観、エントランス

アースコートディアキャナル下関 外観・エントランス

リビングに腰かけながらの海峡を独占する壮大なロケーション

リビングからの海峡ビュー

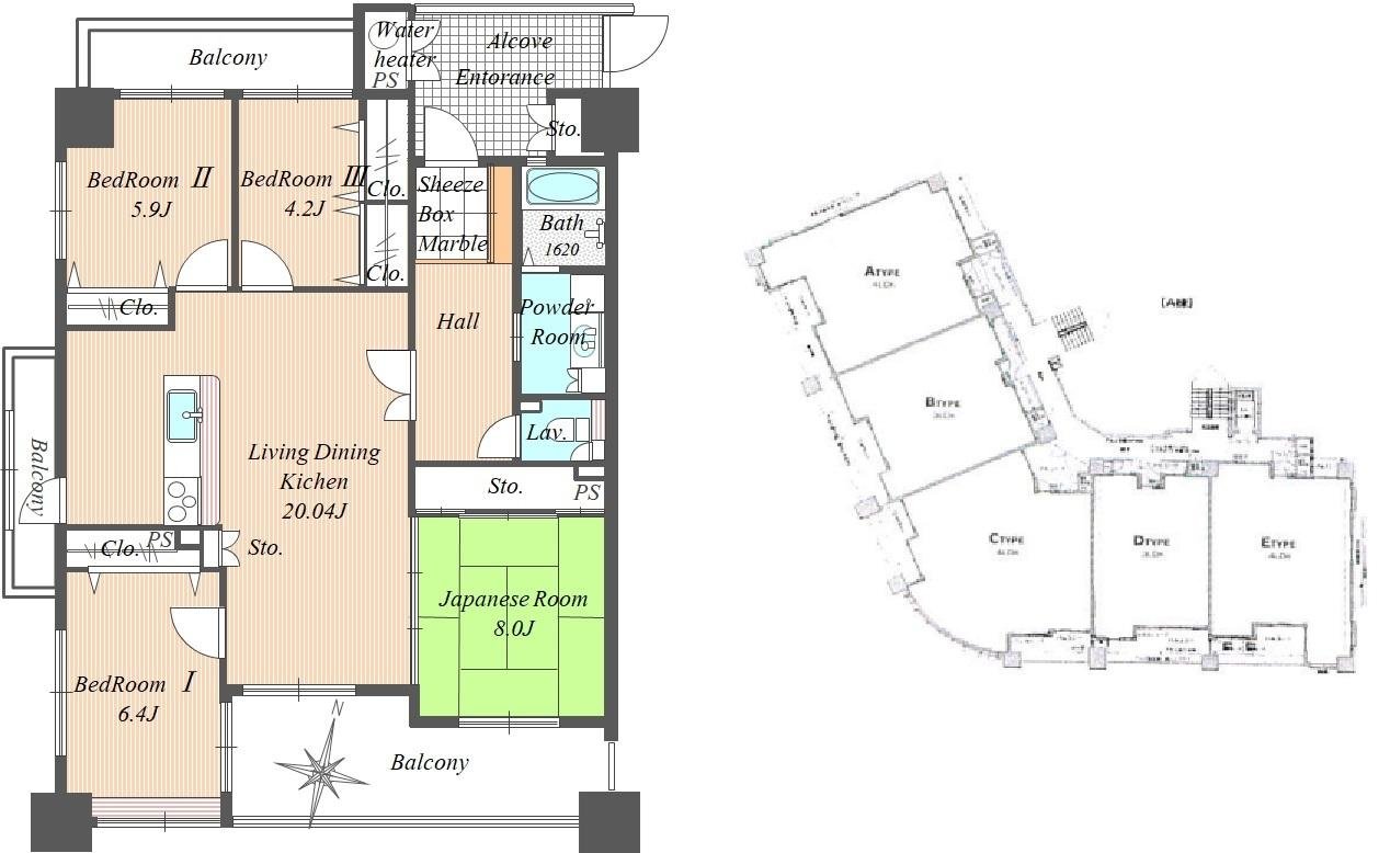
独立性の高い3LDK(4LDKを改修)角部屋のCタイプ

間取り図

アースコートディアキャナル下関 403号室 3,480万円 物件概要

物件概要

アドバンス21ベイスクエア下関 最上階角部屋4LDK 3,980万円

アドバンス21ベイスクエア下関

市の中心市街地にありながら優れた住環境

美しい海峡の風景が広がる下関市細江ベイエリア。そこは、ながく人々に愛された憧れの対象であり続けた街です。マンションの隣接には国際貿易ビルとオービジョン海峡ゆめタワーがあり、徒歩3分には図書館や多目的ホールがある下関生涯学習プラザがあります。下関の中心市街地にあってデパートや商業集積モールや結婚式場、大型スーパー、バスターミナル、市営の駐車場もあり暮らしに利便性がコラボレーションされている割には、住環境にとても優れています。マンション内にはメディカルモールや薬局が入店していて利便性をさらに高めています。

JR下関駅 徒歩14分

周辺地図

アドバンス21ベイスクエア下関 1401号室

室内写真

オーシャンビュー 医療モールのあるマンション

オーシャンビュー・共用部

最上階 角部屋 Atype

間取り図

アドバンス21ベイスクエア下関 1401号室 物件概要

物件概要

下関への移住、まずはご相談を

移住に関するご質問・物件探しはエステートナビにお任せください。
地域の生活情報も含めて丁寧にご案内します。

受付時間:10:00〜18:00(不定休)